3 Bedroom
2 Bathroom
Baseboard Heaters, Wall Mounted Heat Pump, Radiant Heat
$354,900
Looking for a 3-bed Duplex in Summerside near the waterfront and downtown amenities? 348 Jennifer Street offers 3 bedrooms, 1.5 baths, and 1,678 sq ft of living space with a finished basement, fenced backyard with deck, and a quiet neighbourhood setting just minutes from the Harbourfront Boardwalk and Credit Union Place. Welcome to 348 Jennifer Street in Summerside, PEI. Built in 2009, this well maintained townhouse offers comfortable living in a peaceful neighbourhood while remaining close to the city?s most popular amenities. The home features 1,678 square feet of living space, including a finished basement that provides extra room for a family area, home office, or recreation space. The interior has been newly painted throughout, creating a clean and move in ready feel. The property includes 3 bedrooms and 1.5 bathrooms, offering a practical layout for everyday living. Outside, the home sits on a 0.068 acre lot with a fully fenced backyard and private deck, ideal for relaxing or outdoor gatherings. Additional highlights include a paved driveway with space for two vehicles and a location on quiet Jennifer Street, providing a peaceful residential setting. This home is conveniently located minutes from the Harbourfront Boardwalk, Credit Union Place recreation complex, and downtown Summerside, where you will find shopping, dining, services, and community amenities. With comfortable interior space, outdoor privacy, and a central location, this 3-bed townhouse in Summerside offers an excellent opportunity for buyers looking for convenience and lifestyle in one of the city?s welcoming neighbourhoods. Property taxes: $2,159 per year. (id:48213)
Property Details
|
MLS® Number
|
202606000 |
|
Property Type
|
Single Family |
|
Community Name
|
Summerside |
|
Community Features
|
Recreational Facilities |
Building
|
Bathroom Total
|
2 |
|
Bedrooms Above Ground
|
3 |
|
Bedrooms Total
|
3 |
|
Appliances
|
Range - Electric, Dishwasher, Dryer - Electric, Washer, Microwave Range Hood Combo, Refrigerator |
|
Constructed Date
|
2009 |
|
Construction Style Attachment
|
Semi-detached |
|
Exterior Finish
|
Vinyl |
|
Flooring Type
|
Carpeted, Laminate |
|
Foundation Type
|
Poured Concrete |
|
Half Bath Total
|
1 |
|
Heating Fuel
|
Electric |
|
Heating Type
|
Baseboard Heaters, Wall Mounted Heat Pump, Radiant Heat |
|
Stories Total
|
2 |
|
Total Finished Area
|
1678 Sqft |
|
Type
|
House |
|
Utility Water
|
Municipal Water |
Land
|
Acreage
|
No |
|
Land Disposition
|
Cleared |
|
Sewer
|
Municipal Sewage System |
|
Size Total Text
|
Under 1/2 Acre |
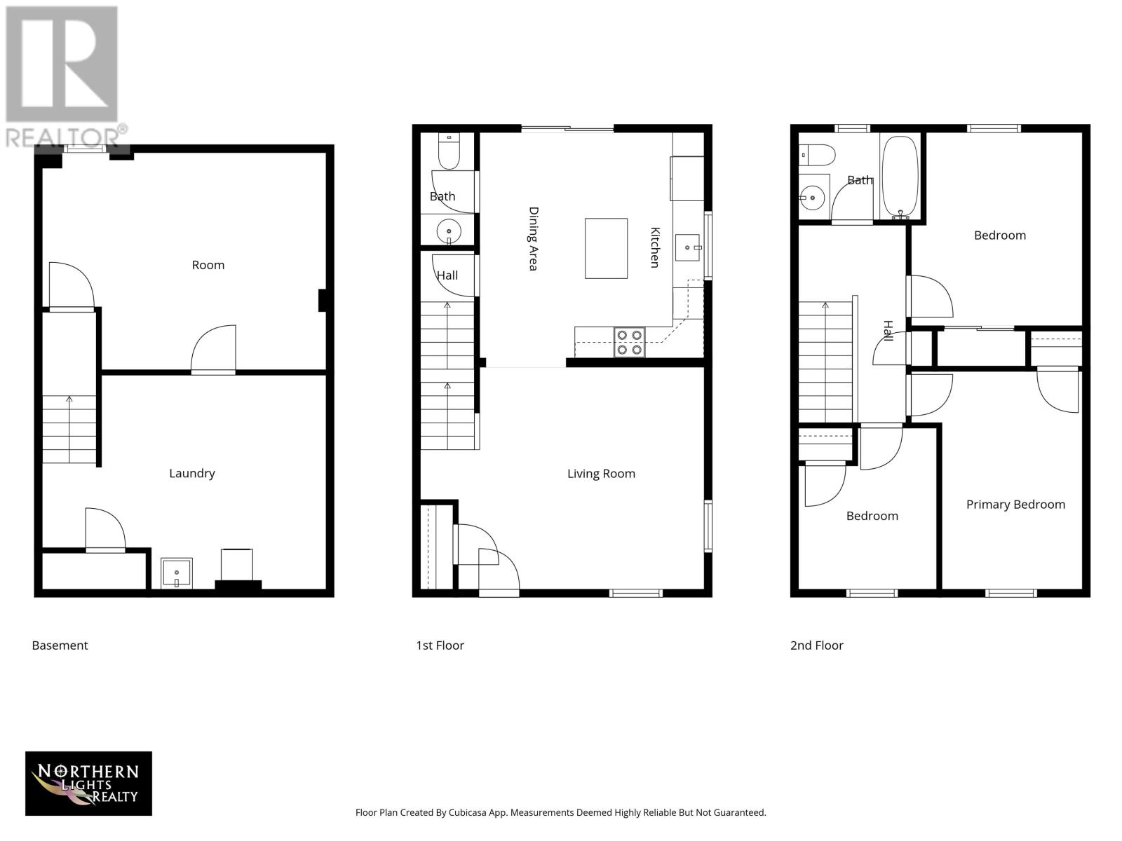
Rooms
| Level |
Type |
Length |
Width |
Dimensions |
|
Second Level |
Primary Bedroom |
|
|
10.9 x 12.4 |
|
Second Level |
Bedroom |
|
|
8.9 x 10.6 |
|
Second Level |
Bedroom |
|
|
8.8 x 13.11 |
|
Lower Level |
Bath (# Pieces 1-6) |
|
|
5.3 x 7.7 |
|
Lower Level |
Recreational, Games Room |
|
|
3.1' x 17.6 |
|
Lower Level |
Laundry Room |
|
|
13.10 x 13.10 |
|
Main Level |
Living Room |
|
|
15.6 x 14. |
|
Main Level |
Eat In Kitchen |
|
|
14.2 x 14.3 |
|
Main Level |
Bath (# Pieces 1-6) |
|
|
3.2 x 7.2 |
https://www.realtor.ca/real-estate/29542264/348-jennifer-street-summerside-summerside